大阪のシェアオフィス需要急拡大に対応「BIZcomfort北浜」がブランド最大級※1の1,200平方メートル 超へ増床 イベントスペース・会議室・セルフカフェ・受付を新設し1月13日リニューアルオープン
WOOC
コワーキングスペース・レンタルオフィスの「BIZcomfort(ビズコンフォート)」を運営する、株式会社WOOC(読み方:ウォーク 、所在地:東京都品川区、代表取締役:阪谷 泰之 以下、WOOC)は、大阪市中央区の高層ビル「北浜ネクスビルディング」で運営するシェアオフィス「BIZcomfort北浜」を、総面積1,200平方メートル を超えるBIZcomfortブランド最大級※1の規模に増床し、2026年1月13日にリニューアルオープンします。大阪中心部ではテレワークやハイブリッドワークの広がりによりシェアオフィスの需要が高まっており、今回の増床ではイベントスペースや会議室、セルフカフェ、受付機能など、働き方に合わせて使える新しい設備を整えました。
※1:BIZcomfortブランドの拠点の中で最大

BIZcomfort北浜 レンタルオフィス イメージ
※2出典:JLL株式会社「新時代を迎える大阪フレキシブルオフィス市場」https://www.jll.com/ja-jp/insights/a-new-era-for-osakas-flexible-office
BIZcomfort北浜 レンタルオフィス内覧会の事前予約受付中!
【先行内覧会】2026年1月10日(土)、11日(日)9:00~18:00(最終受付 17:30)
12日以降の内覧予約も随時受付しております。コワーキングスペースの先行内覧会はございません。
【利用方法】
BIZcomfort北浜HPから内覧予約ページにアクセスし、ご希望日時・必要事項を入力の上ご予約ください。
確定日時は追ってご連絡いたします。皆様のご参加を心よりお待ちしております。
メディア関係者の取材や撮影も歓迎しております。ぜひお気軽にお越しください。事前にご連絡をお願いいたします。
担当:株式会社 WOOC 太田(おおた) TEL:03-5789-3325 MAIL:pr@wooc.co.jp
大阪メトロ堺筋線・京阪本線の北浜駅徒歩4分、さらに大阪メトロ天満橋駅・淀屋橋駅からも徒歩圏内と、3駅からアクセス可能な利便性を誇ります。京都方面や大阪市内への移動もスムーズです。北浜エリアは金融機関が集積する一等地に位置し、洗練された空間と充実した設備をオフィスは、ビジネスの拠点として理想的な環境を提供します。

北浜ネクスビルディング 外観
特徴2.4~12名向けのレンタルオフィス
8階に4~12名向けのレンタルオフィスを16戸新設し、オフィスに必要な家具・インターネット環境・什器類の設備をあらかじめ完備。一般オフィス契約で発生しがちな敷金・礼金などの初期費用は不要、また、内装費や設備工事費を削減することが可能です。さらに、同フロアに8階契約者専用のラウンジを併設し、来客対応や休憩場所をご提供します。

レンタルオフィス イメージ
特徴3.新たにコワーキングスペースを拡充
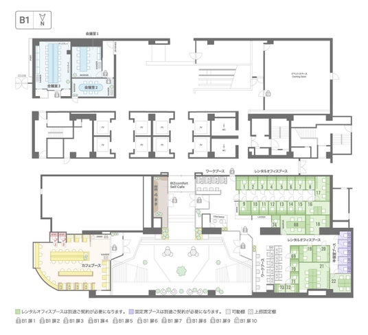
地下1階は既存のコワーキングスペースに加え、同フロアにWEB会議や食事が可能なカフェブースを新設します。用途に合わせて空間をゾーニングすることで、作業効率を上げ、さらに快適な空間へ進化します。全53席のコワーキングスペースは、広々とした1名用ソファー席、全席切りがあるワークブース、モニター席など多様な席をご用意。プライバシーを重視したい方には、個室での通話やオンラインミーティングができるWEB会議ルーム※3を用意しています。
※3予約制・有料

コワーキングスペース イメージ
特徴4.多目的用途で使える会議室・イベントスペース
新たに6名・8名・14名用の会議室※4の増設と、最大24名着席(最大収容約50名)のイベントスペース※4を新設いたします。会議室には大型モニターを完備し、スムーズな情報共有を実現。対面・オンライン双方に対応し、安心して会話できる専用空間をご提供いたします。イベントスペースには音響設備、キッチンスペース、ステージを備え、多彩な用途に対応可能。セミナーや懇親会など、幅広いシーンでご活用いただける環境を整えています。
※4 予約制・有料

会議室 イメージ
特徴5.BIZcomfort Self Cafe&受付コンシェルジュ
2024年12月、大阪江戸堀にてカフェ事業の第一弾「BIZcomfort Cafe」を開業し、多くのお客さまにご好評をいただいております。この度、第二弾として「BIZcomfort北浜」にセルフカフェをオープンします。本カフェでは、大阪を代表するタカムラコーヒーロースターズ※5監修による、オリジナルブレンドのスペシャルティコーヒー※6をお手軽価格で販売します。香り高い一杯とともに、コーヒー以外の多彩なドリンクもお楽しみいただけます。また、受付機能を新たに導入し、快適なワークスペースの提供に加え、ビジネスの円滑な運営をサポートいたします。
▼BIZcomfort Self Cafeメニュー(一部)
・ブレンドコーヒー(R)150円
・カフェラテ(R)200円 すべて税込価格です。
※5 タカムラコーヒーロースターズ公式WEBサイト:https://takamura-coffee.com/
※6 産地や品質が厳格に管理された高水準のコーヒー豆を用い、豊かな香りと個性ある風味を備えた特別なコーヒー

BIZcomfort Self Cafe 商品 イメージ
アクセス:大阪メトロ堺筋線・京阪本線「北浜駅」徒歩4分/ 大阪メトロ谷町線・京阪本線・京阪中之島線・「天満橋駅」徒歩7分/大阪メトロ御堂筋線・京阪本線「淀屋橋駅」徒歩9分
広さ:1,226平方メートル (370.86坪)
席数:【コワーキングスペース】オープンスペース53席 固定席5席/【レンタルオフィス】45戸/【設備】会議室3室/イベントスペース1室
利用料金:【コワーキングスペース】
全日プラン(24時間365日いつでも使える):15,400円/月
土日祝プラン(土日祝のみ使える):5,500円/月
関西プラン(関西エリアのBIZcomfortが全て使える):17,600円/月
全拠点プラン(全国のBIZcomfortが全て使える):22,000円/月
固定席プラン(自分専用の半個室が使える):33,000円~/月
ライトプラン(月額基本料2,200円を超えた分は1日ごとの従量課金制で使える):1,650円~/日
【レンタルオフィス】44,000円~/月 (共益費込み、部屋により異なる)
設備:Wi-Fi、フリードリンク、無料プリンター、ロッカー、ポスト、登記可、会議室、WEB会議用個室、イベントスペース、BIZcomfort Self Cafe、コンシェルジュ
HP:https://bizcomfort.jp/osakafu/kitahama.html

地下1階フロアマップ

8階フロアマップ
そんな背景の中、当社では”「はたらく」をもっと自由に快適に!”をコンセプトに、シェアオフィス「BIZcomfort」を運営。関東・関西を中心に、全国展開に向けて積極的に拡大しています。
大阪市西区・北区のBIZcomfort
BIZcomfort大阪江戸堀肥後橋駅より徒歩7分、1,000平方メートル を超える広さを誇るシェアオフィスに、同ビル内で「BIZcomfort Cafe」を併設したオフィスです。BIZcomfort北浜に続くフラッグシップ拠点として展開しています。
住所:大阪府大阪市西区江戸堀2-1-1 江戸堀センタービルB1
HP :https://bizcomfort.jp/osakafu/osaka-edobori.html

BIZcomfort東梅田東梅田駅から徒歩3分。大阪駅や梅田駅など大阪の中心部に位置し、複数路線からアクセス可能なオフィスです。全6フロアに広がるシェアオフィスは、多様な働き方を支える環境を提供します。
住所:大阪府大阪市北区曾根崎2-8-5 お初天神EAST BLDG 3F~8F
HP : https://bizcomfort.jp/osakafu/higashiumeda.html

代表:代表取締役 阪谷 泰之
本社所在地:東京都品川区西五反田2-30-4 BR五反田ビル7F
電話:03-5789-3323
設立:2008年9月
資本金:17,510万円(資本準備金8,255万円含む)
年間売上高:17期 6,779,540(千円)
店舗数:レンタルオフィス191拠点・コワーキングスペース183拠点(提携店舗・新規オープン予定を含む)
従業員数:計 206名(社員86名・パート120名)※2025年12月時点
事業内容:レンタルオフィス・コワーキングスペース事業/住宅サブリース事業/リフォーム・リノベーション事業/不動産管理・仲介事
業/不動産売買仲介事業
公式HP:https://www.wooc.co.jp/
WOOCのSDGsについて
WOOCは、「空間再生」と「シェアオフィス運営」を通じてSDGsの推進に取り組んでいます。シェアオフィス「BIZcomfort」は、都心だけでなく住宅地や郊外にも展開し、誰もがどこでも働ける環境を提供。多様な働き方や労働生産性の向上を支援し、「働きがい」と「経済成長」に貢献しています。
HP:https://www.wooc.co.jp/sustainability.html

WOOCの働き方について
WOOCは、「女性活躍推進法」に基づく厚生労働大臣認定の「えるぼし」において、最高位の3つ星を獲得しました。多様な働き方をサポートする企業として、自社内でも男女問わず互いを尊重し、自分らしく活躍できる環境実現への取り組みを続けてまいります。

企業プレスリリース詳細へ
PR TIMESトップへ
コワーキングスペース・レンタルオフィスの「BIZcomfort(ビズコンフォート)」を運営する、株式会社WOOC(読み方:ウォーク 、所在地:東京都品川区、代表取締役:阪谷 泰之 以下、WOOC)は、大阪市中央区の高層ビル「北浜ネクスビルディング」で運営するシェアオフィス「BIZcomfort北浜」を、総面積1,200平方メートル を超えるBIZcomfortブランド最大級※1の規模に増床し、2026年1月13日にリニューアルオープンします。大阪中心部ではテレワークやハイブリッドワークの広がりによりシェアオフィスの需要が高まっており、今回の増床ではイベントスペースや会議室、セルフカフェ、受付機能など、働き方に合わせて使える新しい設備を整えました。
※1:BIZcomfortブランドの拠点の中で最大

BIZcomfort北浜 レンタルオフィス イメージ
なぜ北浜で増床?背景に「大阪中心部でシェアオフィスの需要拡大」
今回の増床は、大阪中心部で加速するシェアオフィス需要の拡大を背景に実施しました。大企業の社員を中心にハイブリットワークが広がり、フレキシブルワークスペースの需要が拡大しています。大阪におけるフレキシブルワークスペースの純賃貸可能面積は2024年時点で約58,070平方メートル と、2019年末から40%増加しました※2。2024年6月にオープンした「BIZcomfort北浜」は、開業前からレンタルオフィスがほぼ満室となり、以降も空室が出てもすぐに申込が入る状況が続いています。コワーキングスペースの利用者も増加しており、こうした需要の高まりに応えるため、今回のリニューアルオープンを決定しました。※2出典:JLL株式会社「新時代を迎える大阪フレキシブルオフィス市場」https://www.jll.com/ja-jp/insights/a-new-era-for-osakas-flexible-office
BIZcomfort最大級拠点:5つの新機能で「働く場所」から「働く・集う・広げる」までを支える拠点へ進化
今回の増床により「BIZcomfort北浜」には従来のシェアオフィス機能に加え、5つの新たなビジネス機能が加わりました。これにより、個人のワークスペースとしての機能に加え、企業の成長支援や人と人がつながり、新たな活動が広がる多機能型拠点へと拡充します。8階にはレンタルオフィス・専用ラウンジフロアを増床し、本社機能やサテライトオフィスに適した、家具・インターネット環境・空調設備を完備したレンタルオフィスを整備しました。地下1階にはコワーキングスペース・会議室の拡張に加え、多用途で利用できるイベントスペース、お手頃価格で飲めるセルフカフェ、受付機能を備えた多目的エリアを設けました。BIZcomfort北浜 レンタルオフィス内覧会の事前予約受付中!
【先行内覧会】2026年1月10日(土)、11日(日)9:00~18:00(最終受付 17:30)
12日以降の内覧予約も随時受付しております。コワーキングスペースの先行内覧会はございません。
【利用方法】
BIZcomfort北浜HPから内覧予約ページにアクセスし、ご希望日時・必要事項を入力の上ご予約ください。
確定日時は追ってご連絡いたします。皆様のご参加を心よりお待ちしております。
メディア関係者の取材や撮影も歓迎しております。ぜひお気軽にお越しください。事前にご連絡をお願いいたします。
担当:株式会社 WOOC 太田(おおた) TEL:03-5789-3325 MAIL:pr@wooc.co.jp
BIZcomfort北浜の特徴
特徴1.金融の中心地に位置する利便性の高いシェアオフィス大阪メトロ堺筋線・京阪本線の北浜駅徒歩4分、さらに大阪メトロ天満橋駅・淀屋橋駅からも徒歩圏内と、3駅からアクセス可能な利便性を誇ります。京都方面や大阪市内への移動もスムーズです。北浜エリアは金融機関が集積する一等地に位置し、洗練された空間と充実した設備をオフィスは、ビジネスの拠点として理想的な環境を提供します。

北浜ネクスビルディング 外観
特徴2.4~12名向けのレンタルオフィス
8階に4~12名向けのレンタルオフィスを16戸新設し、オフィスに必要な家具・インターネット環境・什器類の設備をあらかじめ完備。一般オフィス契約で発生しがちな敷金・礼金などの初期費用は不要、また、内装費や設備工事費を削減することが可能です。さらに、同フロアに8階契約者専用のラウンジを併設し、来客対応や休憩場所をご提供します。

レンタルオフィス イメージ
特徴3.新たにコワーキングスペースを拡充
地下1階は既存のコワーキングスペースに加え、同フロアにWEB会議や食事が可能なカフェブースを新設します。用途に合わせて空間をゾーニングすることで、作業効率を上げ、さらに快適な空間へ進化します。全53席のコワーキングスペースは、広々とした1名用ソファー席、全席切りがあるワークブース、モニター席など多様な席をご用意。プライバシーを重視したい方には、個室での通話やオンラインミーティングができるWEB会議ルーム※3を用意しています。
※3予約制・有料

コワーキングスペース イメージ
特徴4.多目的用途で使える会議室・イベントスペース
新たに6名・8名・14名用の会議室※4の増設と、最大24名着席(最大収容約50名)のイベントスペース※4を新設いたします。会議室には大型モニターを完備し、スムーズな情報共有を実現。対面・オンライン双方に対応し、安心して会話できる専用空間をご提供いたします。イベントスペースには音響設備、キッチンスペース、ステージを備え、多彩な用途に対応可能。セミナーや懇親会など、幅広いシーンでご活用いただける環境を整えています。
※4 予約制・有料

会議室 イメージ
特徴5.BIZcomfort Self Cafe&受付コンシェルジュ
2024年12月、大阪江戸堀にてカフェ事業の第一弾「BIZcomfort Cafe」を開業し、多くのお客さまにご好評をいただいております。この度、第二弾として「BIZcomfort北浜」にセルフカフェをオープンします。本カフェでは、大阪を代表するタカムラコーヒーロースターズ※5監修による、オリジナルブレンドのスペシャルティコーヒー※6をお手軽価格で販売します。香り高い一杯とともに、コーヒー以外の多彩なドリンクもお楽しみいただけます。また、受付機能を新たに導入し、快適なワークスペースの提供に加え、ビジネスの円滑な運営をサポートいたします。
▼BIZcomfort Self Cafeメニュー(一部)
・ブレンドコーヒー(R)150円
・カフェラテ(R)200円 すべて税込価格です。
※5 タカムラコーヒーロースターズ公式WEBサイト:https://takamura-coffee.com/
※6 産地や品質が厳格に管理された高水準のコーヒー豆を用い、豊かな香りと個性ある風味を備えた特別なコーヒー

BIZcomfort Self Cafe 商品 イメージ
BIZcomfort北浜 施設概要
住所:大阪府大阪市中央区北浜東4-33 北浜ネクスビルディングB1・8Fアクセス:大阪メトロ堺筋線・京阪本線「北浜駅」徒歩4分/ 大阪メトロ谷町線・京阪本線・京阪中之島線・「天満橋駅」徒歩7分/大阪メトロ御堂筋線・京阪本線「淀屋橋駅」徒歩9分
広さ:1,226平方メートル (370.86坪)
席数:【コワーキングスペース】オープンスペース53席 固定席5席/【レンタルオフィス】45戸/【設備】会議室3室/イベントスペース1室
利用料金:【コワーキングスペース】
全日プラン(24時間365日いつでも使える):15,400円/月
土日祝プラン(土日祝のみ使える):5,500円/月
関西プラン(関西エリアのBIZcomfortが全て使える):17,600円/月
全拠点プラン(全国のBIZcomfortが全て使える):22,000円/月
固定席プラン(自分専用の半個室が使える):33,000円~/月
ライトプラン(月額基本料2,200円を超えた分は1日ごとの従量課金制で使える):1,650円~/日
【レンタルオフィス】44,000円~/月 (共益費込み、部屋により異なる)
設備:Wi-Fi、フリードリンク、無料プリンター、ロッカー、ポスト、登記可、会議室、WEB会議用個室、イベントスペース、BIZcomfort Self Cafe、コンシェルジュ
HP:https://bizcomfort.jp/osakafu/kitahama.html
BIZcomfort北浜 フロアマップ

地下1階フロアマップ

8階フロアマップ
BIZcomfortについて
近年は働き方が多様化し、フリーランスや副業、スタートアップなど、自分の特技や強みを生かした働き方を選択する人が増加しています。さらに企業側も、働き方改革の一環で、シェアオフィスを用いたテレワークの導入や、子育て・介護世代が自宅近くでも働けるサテライトオフィスを設置する傾向にあり、働くスタイルや意識が大きく変わろうとしています。そんな背景の中、当社では”「はたらく」をもっと自由に快適に!”をコンセプトに、シェアオフィス「BIZcomfort」を運営。関東・関西を中心に、全国展開に向けて積極的に拡大しています。
大阪市西区・北区のBIZcomfort
BIZcomfort大阪江戸堀肥後橋駅より徒歩7分、1,000平方メートル を超える広さを誇るシェアオフィスに、同ビル内で「BIZcomfort Cafe」を併設したオフィスです。BIZcomfort北浜に続くフラッグシップ拠点として展開しています。
住所:大阪府大阪市西区江戸堀2-1-1 江戸堀センタービルB1
HP :https://bizcomfort.jp/osakafu/osaka-edobori.html

BIZcomfort東梅田東梅田駅から徒歩3分。大阪駅や梅田駅など大阪の中心部に位置し、複数路線からアクセス可能なオフィスです。全6フロアに広がるシェアオフィスは、多様な働き方を支える環境を提供します。
住所:大阪府大阪市北区曾根崎2-8-5 お初天神EAST BLDG 3F~8F
HP : https://bizcomfort.jp/osakafu/higashiumeda.html

WOOC 会社概要
商号:株式会社WOOC(ウォーク)代表:代表取締役 阪谷 泰之
本社所在地:東京都品川区西五反田2-30-4 BR五反田ビル7F
電話:03-5789-3323
設立:2008年9月
資本金:17,510万円(資本準備金8,255万円含む)
年間売上高:17期 6,779,540(千円)
店舗数:レンタルオフィス191拠点・コワーキングスペース183拠点(提携店舗・新規オープン予定を含む)
従業員数:計 206名(社員86名・パート120名)※2025年12月時点
事業内容:レンタルオフィス・コワーキングスペース事業/住宅サブリース事業/リフォーム・リノベーション事業/不動産管理・仲介事
業/不動産売買仲介事業
公式HP:https://www.wooc.co.jp/
WOOCのSDGsについて
WOOCは、「空間再生」と「シェアオフィス運営」を通じてSDGsの推進に取り組んでいます。シェアオフィス「BIZcomfort」は、都心だけでなく住宅地や郊外にも展開し、誰もがどこでも働ける環境を提供。多様な働き方や労働生産性の向上を支援し、「働きがい」と「経済成長」に貢献しています。
HP:https://www.wooc.co.jp/sustainability.html

WOOCの働き方について
WOOCは、「女性活躍推進法」に基づく厚生労働大臣認定の「えるぼし」において、最高位の3つ星を獲得しました。多様な働き方をサポートする企業として、自社内でも男女問わず互いを尊重し、自分らしく活躍できる環境実現への取り組みを続けてまいります。

企業プレスリリース詳細へ
PR TIMESトップへ

